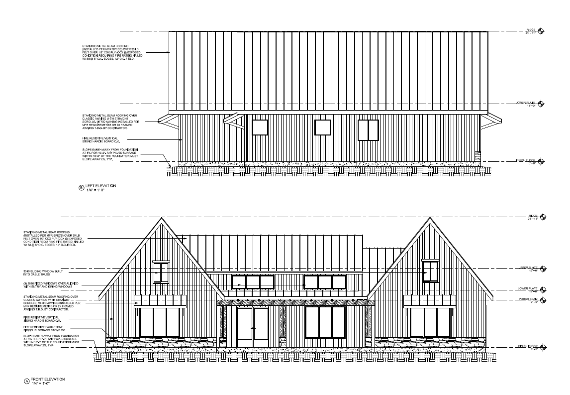
Salisbury

Salisbury

3-4 Bedroom, 3 baths, 2 Car Garage

View Details
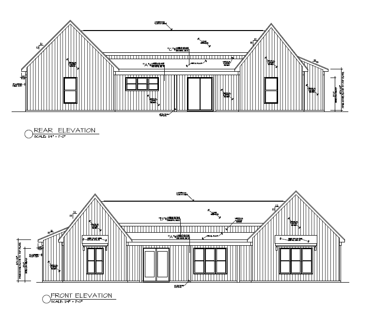
Coopergate

Coopergate

View Details
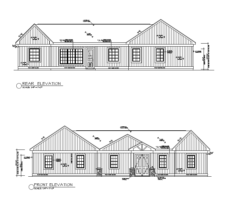
Old Bailey

Old Bailey

3 Bedrooms, 2.5 Baths, Left Side Load Garage.

View Details
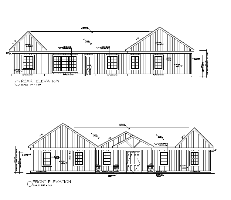
Ruby Plan

Ruby Plan

View Details